Vielseitig nutzbares Atelier an beliebter Altstadtlage
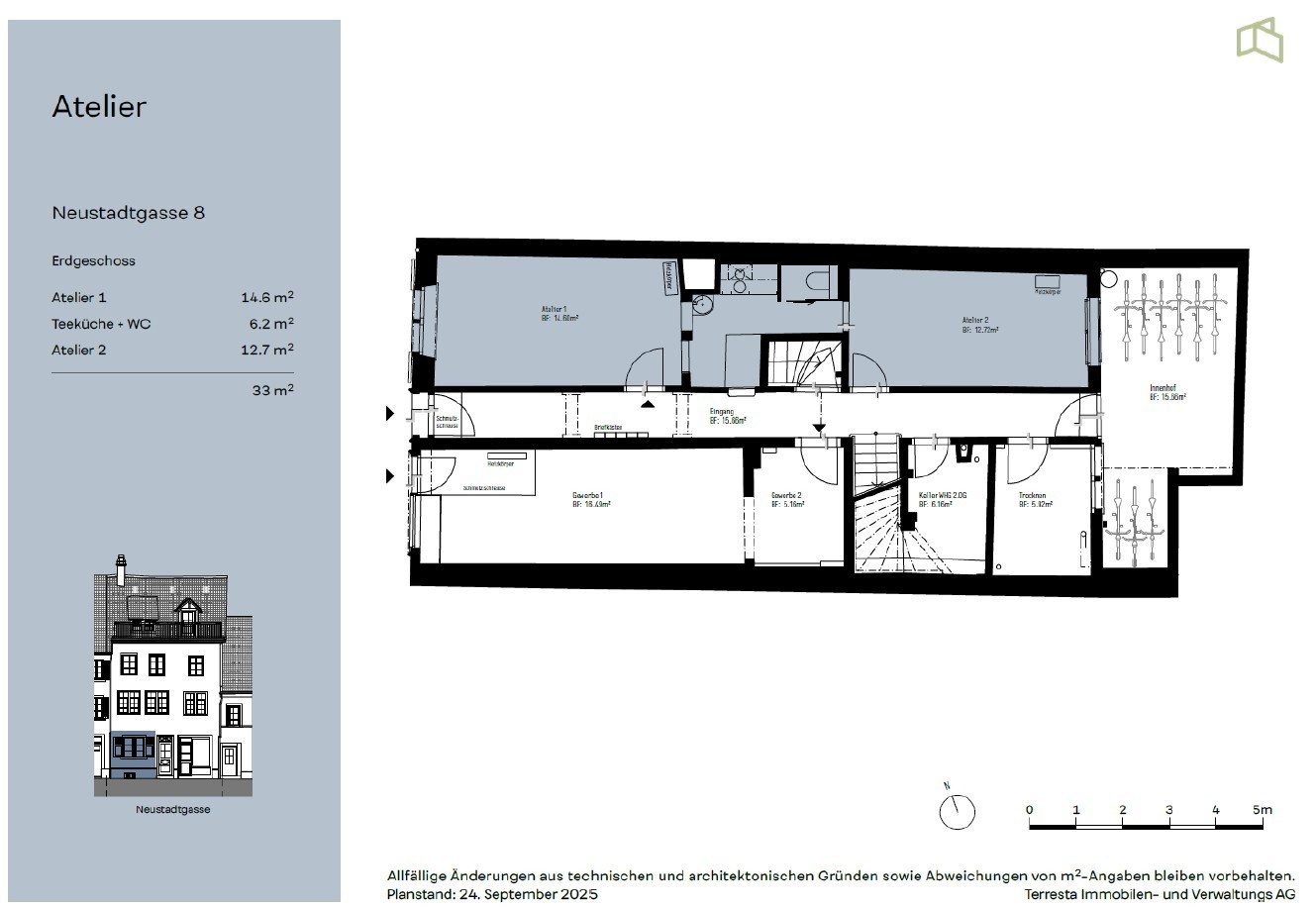
Das frisch renovierte Atelier im Erdgeschoss der geschichtsträchtigen Liegenschaft an der Neustadtgasse 8 bietet Ihnen 33 m² voller Charakter und Inspiration. Zwei charmante Atelierräume mit historischen Holztäfern und Stuckaturen schaffen eine einzigartige Atmosphäre für kreative Köpfe, Kunstschaffende oder ruhiges Arbeiten.
Highlights des Ateliers:
- Zugang über den Hauseingang – diskret und unabhängig
- Zwei Atelierräume (14.6 m² & 12.7 m²) mit geschliffenem, geöltem Parkettboden
- Farbenfrohe Wände in hellgrün und rot – stilvoll und stimulierend
- Teeküche & WC in separater Holzbox mit Schiebetüre (6.2 m²)
- Re-Use-Heizkörper in Grau – nachhaltig und charmant
- Moderne Elektroinstallationen inkl. Glasfaseranschluss und Gegensprechanlage
Ideal auch für zwei Personen!
Die Raumaufteilung eignet sich hervorragend für eine gemeinsame Nutzung – teilen Sie sich das Atelier mit einer Kollegin oder einem Kollegen und profitieren Sie von einem inspirierenden Umfeld für gemeinsames Arbeiten.
Tauchen Sie ein in die kreative Energie der Altstadt und gestalten Sie Ihre Zukunft in einem Atelier, das Geschichte und Moderne vereint.
Interessiert? Vereinbaren Sie noch heute einen persönlichen Beratungstermin vor Ort.





